K Kami akan membentangkan prestasi, kaedah operasi yang selamat, dan parameter teknikal ZG GS-12 Pad Mount Transformer

1. Peruntukan am
Manual ini digunakan untuk membantu jurutera dan juruteknik dalam pemasangan, penggunaan dan operasi pengubah gabungan (selepas ini dirujuk sebagai combinator).
Pengubah gabungan yang dihasilkan oleh kilang kami adalah pengubah pengedaran tiga fasa yang terlindung sepenuhnya, dimeteraikan sepenuhnya, kalis air untuk pemasangan benchtop, yang sesuai untuk Sistem pengedaran tiga fasa dengan Voltan yang dinilai daripada 10K KV. Memenuhi keperluan piawaian kebangsaan yang berkaitan
Manual ini bukan subsenium untuk prosedur operasi umum peralatan elektrik, juga tidak boleh memenuhi semua keperluan pemasangan, penggunaan dan operasi.. Tugas-tugas ini perlu dijalankan dengan kakitangan yang biasa dengan keselamatan dan prosedur operasi sistem kuasa
2. Penggunaan syarat-syarat dan persekitaran
a. K Ketinggian: tidak lebih daripada 1000m.
b. Perkhidmatan Suhu ambien: -25C hingga 40C
c. Menggunakan kaedah K Kelembapan relatif: tidak lebih daripada 95% (purata harian).
d. Perkhidmatan K Kecenderungan tanah: tiada latihan 3.
e. K Kelajuan angin: tidak lebih daripada 35m / s.
Tempat dalaman dan luaran tanpa kejutan dan getaran yang ganas, tiada pencemaran yang serius dan media kakisan kimia, dan tiada bahaya letupan.
3. Parameter teknikal utama
nombor siri | nama | Unit | B. B.ahagian tekanan tinggi | transformer | B. B.ahagian tekanan rendah |
1 | Voltan yang dinilai | K KV | 10 | 0.4 | |
2 | Voltan operasi maksimum | K KV | 12 | ||
3 | K Kapasiti yang diberi nilai | K KVA: A | 50-2500 | ||
4 | Nilai semasa | A: A | 10-630 | 100-2500 | |
5 | Mengekalkan masa kini untuk seketika | K KA: A | 12.5/20 | 12.6-40 | |
6 | Masa toleransi pendek | S | 2 | 1 | |
7 | Puncak menahan semasa | K KA: A | 50 | 30-60 | |
8 | Frekuensi kuasa menahan tekanan | K KV | 35 | 35 | 5 |
9 | K Kesan kilat menahan tekanan | K KV | 75 | 75 | |
10 | Fus pengehadkan arus voltan tinggi dengan cepat memotong arus | K KA: A | 50 | ||
11 | Tahap perlindungan | IP33 | IP65 | IP33 | |
12 | Tahap bunyi | db | W55 | ||
13 | K Kekerapan yang dinilai | Hz | 50/60 |
4. Pembungkusan pemeriksaan penerimaan
Semak produk untuk kerosakan, ubah bentuk dan kerosakan. Periksa sama ada aksesori dan alat khas telah lengkap mengikut senarai pembungkusan, dan memasang mengikut keperluan pemasangan selepas mengesahkan bahawa mereka betul.
5. Pemasangan
A: A. Perkhidmatan yang disediakan Perhimpunan dipasang di atas asas konkrit dengan ketinggian 100-400mm dari tanah yang mencukupi untuk menanggung berat perhimpunan. Rajah saiz yang disyorkan saiz perhimpunan dan asas ditunjukkan dalam L Lampiran 1.
B. B.. B. B.. K Kabel diletakkan sebelum kumpulan berada di tempat dan mestilah tanpa elektrik.
C. Perkhidmatan yang disediakan Terdapat cangkuk untuk memuat dan memunggah berhampiran bahagian atas kotak, dan sudut antara kabel keluli angkat dan garis menegak tidak boleh melebihi 30 apabila diregangkan. Sekiranya perlu, bar silang perlu digunakan untuk menyokong kabel keluli untuk mengelakkan ubah bentuk struktur atau cangkuk angkat. Sebilangan besar berat pengubah perhimpunan tertumpu di dalam kotak utama yang mengandungi teras besi, minyak penggulungan dan penebat, dan kebanyakan kotak terminal voltan tinggi dan rendah kosong, dan beratnya agak ringan. (Penggunaan cangkuk atau kren yang tidak betul boleh menyebabkan kerosakan kepada perhimpunan atau aksesori lain, atau menyebabkan kecederaan kepada kakitangan.))
Notis: J Jika pengubah kumpulan tidak boleh diangkat oleh kren, ia boleh melongsor dengan skateboard atau roller. A: Apabila memasukkan kotak dan memasukkan roller di bawah, sekurang-kurangnya dua bicu diperlukan, dan dua sudut bersebelahan harus diangkat dengan lancar pada masa yang sama untuk mengelakkan ubah bentuk bahagian bawah kotak. J Jack yang hanya boleh diletakkan di sudut-sudut bahagian bawah kotak, dan plat sokongan perlu ditambah, dan jack tidak boleh diletakkan di bawah sink haba, injap atau keluli nipis Plat. Sekiranya penggelek digunakan, jumlahnya harus sesuai dan berat kotak harus dibawa sama rata. Sebelum mengeluarkan transformer, memasang cincin tarikan di kedua-dua belah bahagian bawah transformer kotak. J Jangan melampirkan kabel kepada pemutus yang dikumpulkan semula atau bahagian logam lembaran lain.
D. Perkhidmatan yang disediakan Tapak pemasangan
Terdapat dua jenis minyak penebat dalam komposisi, satu adalah minyak titik penyalaan yang tinggi dan yang lain adalah minyak mineral berkualiti tinggi. Pengubah kumpulan dengan minyak penyalaan tinggi (dengan tanda-tanda yang jelas dalam bilik pengasingan voltan rendah kumpulan transformer) boleh digunakan di dalam bangunan atau di luar; K Komposisi minyak mineral tidak boleh digunakan dalam bangunan-bangunan. Titik beku minyak mineral berkualiti tinggi ialah -45. Titik pembekuan minyak penyalaan tinggi ialah -30. 1. G Gabungan minyak penyalaan tinggi tidak boleh digunakan di kawasan dengan suhu ambien yang lebih rendah daripada -30 °C. Sama ada ia adalah gabungan minyak mineral berkualiti tinggi atau minyak penyalaan tinggi, jika ia dimasukkan ke dalam operasi apabila suhu ambien lebih rendah daripada -20 °C, ia perlu dijalankan selama 24 jam tanpa beban untuk pemanasan awal dan kemudian secara beransur-ansur dimuatkan. J Jika ragu-ragu, sila hubungi kilang kami.
6. Ujian penyerahan
Selepas pemasangan selesai, sambungkan palam kabel ujian (palam kabel ujian boleh dibeli sebagai pilihan), dan menjalankan ujian penyerahan mengikut prosedur ujian yang berkaitan standard kebangsaan.
7. L Langkah berjaga-jaga pemasangan
A: A. Perkhidmatan yang disediakan A: Apabila mengakses sistem
sebelum memasang sebarang sistemMasukkan kotak terlebih dahulu. Terminal tanah kotak mesti disambungkan ke titik tanah impedan rendah yang tetap.
Sebelum pendawaian, bersihkan semua lengan, bushing, terminal terminal dan kenalan, dan bersihkan semua habuk, minyak dan objek asing. Menyambung titik neutral perubahan kumpulan dan titik neutral sistem.
Pasang aksesori seperti yang diperlukan untuk memastikan minyak penebat berada pada ketinggian yang sesuai.
A: Apabila tiada orang yang bertugas, tutup dan kunci pintu kotak.
8. A: Apabila operasi
☆ Dalam keadaan biasa, operasi memasukkan fius perlu dijalankan selepas kuasa dipotong, dan arahan operasi yang berkaitan harus dibaca dengan teliti sebelum operasi.
☆ Suis beban dalaman hanya boleh digunakan untuk mengganggu arus yang dinilai, tetapi tidak untuk memutuskan sambungan arus kesalahan.
☆ Tuil operasi yang terlindung mesti digunakan untuk mengendalikan suis beban.
C. Perkhidmatan yang disediakan apabila penyelenggaraan diperlukan
☆ Transformer kumpulan tidak boleh dirombak semasa sistem berjalan. Sebelum penyelenggaraan, ia harus di tebat, mematikan kuasa dan sepenuhnya diasingkan daripada pengubah kumpulan.
☆ Mengendalikan fius plug-in, buka injap suntikan minyak dan melepaskan tekanan dalaman transformer ( tarik keluar injap pelepasan tekanan) sebelum membuka tangki minyak, dan jangan lakukan operasi di atas sebelum tekanan dalaman sifar.
A: Amaran: G Gas yang dilepaskan mungkin mudah terbakar, jadi berhati-hati apabila melepaskan.
J Jangan buka tudung kotak pengubah kumpulan melainkan jika benar-benar diperlukan. Sebelum dibuka, bersih yang kawasan sekitar tudung dan menutupnya dalam masa yang singkat untuk mengelakkan kelembapan dan habuk daripada masuk ke dalam kotak. J Jangan menghidupkan perubahan kumpulan dalam cuaca basah atau hujan.
8. Operasi
A: A. Perkhidmatan yang disediakan Pemeriksaan sebelum commissioning
☆ Semak sama ada sendi kabel disambungkan seperti yang diperlukan, dan sama ada sendi sarung dan palam siku disambungkan di tempat;
☆ Semua sambungan kabel dan dawai tanah kotak mesti disambungkan ke titik tanah yang stabil dan rendah;
☆ Selepas mengesahkan bahawa tidak ada masalah, ia boleh dimasukkan ke dalam operasi;
☆ Sebelum pengubah kumpulan dimasukkan ke dalam operasi, ketinggian paras minyak di dalam kotak mesti diperiksa, dan ketinggian paras minyak harus dibaca terus dari tolok paras minyak, dan paras minyak harus berada di kedudukan yang ditunjukkan tolok paras minyak pada 25 ° C pada 25 ° C.
Nota:: Sebelum memulakan proses penubuhan kumpulan, anda perlu mempunyai pemahaman yang mendalam tentang perubahan kumpulan. Pastikan anda mengenali aplikasi dan fungsi semua peralatan dan aksesori. Sila memakai pakaian pelindung dan peralatan pelindung yang diperlukan semasa operasi, dan gunakan tuas operasi terlindung apabila grounding, ujian, mengasingkan atau menutup peralatan. A: Apabila keadaan kumpulan semula tidak dapat ditentukan, ia dianggap sebagai rawatan hidup.
B. B.. B. B.. Persiapan untuk pentauliahan
a. Isi semula minyak
A: Apabila diperlukan, minyak mesti diisi semula pada masanya
☆ G Gunakan pam dan hos yang tidak tercemar; J Jangan menggunakan hos getah. Oleh kerana minyak akan melarutkan sulfur yang terkandung di dalamnya, hos logam atau bukan getah harus digunakan.
☆ Sambungkan paip outlet minyak pam minyak ke pelabuhan suntikan minyak tangki minyak.
☆ Pam minyak kembali dari bahagian bawah bekas sementara dimeteraikan, berhati-hati untuk tidak membiarkan paip masuk minyak menarik udara.
☆ Untuk mengelakkan inflasi aliran minyak berkelajuan tinggi, pam perlahan-lahan sehingga tahap minyak diperlukan.
b. Perkhidmatan G Grounding
Tanah khusus pada kandang transformer mesti disambungkan ke titik grounding kekal.
c. Menggunakan kaedah Pendawaian voltan tinggi
☆ Perhimpunan ini dilengkapi dengan soket sarung voltan tinggi sejagat. L Lengan pas tunggal atau dua pas yang dipadankan dengan soket sarung perlu dipasangkan di lapangan. K Kaedah pemasangan lengan pas tunggal dan double-pass ditunjukkan dalam L Lampiran 3.
☆ Pasang palam kabel togel pada kabel pendawaian voltan tinggi mengikut kaedah pemasangan yang diterangkan dalam L Lampiran 4, dan kemudian masukkan palam togel ke dalam lengan pas tunggal atau dua kali.
d. Perkhidmatan Pendawaian voltan rendah
Terdapat terminal dawai tiga fasa dan neutral pada pengubah perhimpunan untuk menyambung kabel voltan rendah.
Notis: K Kumpulan ini hanya boleh beroperasi pada penarafan yang ditentukan pada papan nama, dan operasi beban berlebihan jangka panjang akan memberi kesan yang ketara kepada jangka hayat. Sekiranya kumpulan disimpan di luar terlalu lama, sampel minyak mesti diambil untuk memeriksa kandungan kelembapan dan kekuatan dielektrik. A: Apabila kumpulan meninggalkan kilang, biasanya terdapat vakum yang rendah di atas permukaan minyak di dalam kotak (pengukur tekanan menunjukkan tekanan negatif), yang mungkin berubah dengan perubahan operasi atau persekitaran di bawah keadaan biasa, jika pengukur tekanan menunjukkan tekanan sifar untuk masa yang lama, ia menunjukkan bahawa mungkin terdapat kebocoran, dan pemeriksaan lanjut diperlukan.
C. Perkhidmatan yang disediakan K Keperluan Operasi
☆ Sebelum operasi, status operasi talian dan kedudukan penukar paip perlu difahami, dan suis beban harus berada dalam kedudukan yang terputus daripada transformer;
☆ Memahami tujuan dan fungsi semua kelenjar kabel sebelum beroperasi;
☆ Pengendali harus berdiri di kedudukan terbaik dan menggunakan tuil operasi terlindung untuk mengendalikan beban sebelum operasi.
☆ Mengikut peraturan operasi tekanan tinggi yang berkaitan, peralatan pelindung yang diperlukan mesti digunakan untuk memastikan keselamatan.
D. Perkhidmatan yang disediakan Penghantaran kuasa
Tutup suis tahap sebelumnya, kemudian bertukar suis beban ke kedudukan menyambungkan transformer mengikut keperluan 8. 3, dan pengubah kumpulan akan dimasukkan ke dalam operasi.
9. L Lampiran
A: A. Perkhidmatan yang disediakan K Ketik penukar
☆ Penukar paip pemboleh ubah kumpulan adalah penukar paip bebas beban, dan operasi penukar paip hanya boleh dijalankan apabila disahkan bahawa kuasa telah dipotong.
☆ Pengganti paip mempunyai tiga atau lima gear, ditandakan dengan A: A, B. B., C, D, dan E E, dan julat paip adalah 10K KV ± 5% atau 10K KV ± 2 * 2. 5 peratus.
☆ Pemegang operasi berbentuk "T" penukar paip dipasang pada panel ruang tekanan tinggi, sebelum operasi, bolt penguncian dicabut, dan kemudian diputar ke kedudukan yang diperlukan, dan bolt penguncian diketatkan selepas pelarasan. Untuk menambah kunci, anda boleh mengetatkan bolt mengunci rendah dan mengunci dengan gembok.
Nota:: Pengubah kumpulan harus dimatikan sebelum mengendalikan penukar paip, jika tidak, ia akan menyebabkan kerosakan kepada kumpulan dan boleh menyebabkan kecederaan peribadi yang serius.
Suis beban
☆ Suis beban adalah suis perhubungan tiga fasa dengan struktur operasi musim bunga yang cepat. Terdapat 2 jenis: 2 kedudukan dan 4 kedudukan. A: Antara mereka, 2 kedudukan digunakan untuk transformer jenis terminal, dan 4 kedudukan digunakan untuk transformer jenis rangkaian cincin.
☆ Suis beban hanya boleh digunakan untuk mengganggu arus beban, bukan arus litar pintas.
☆ Rod pengendalian terlindung mesti digunakan untuk mengendalikan suis beban.
Fius sisipan
☆ Fius plug-in menyediakan kemudahan untuk menggantikan fius dari luar, seperti yang ditunjukkan dalam L Lampiran 2 untuk kaedah menggantikan fius.
☆ K Kapasiti gabungan yang berbeza, spesifikasi fius yang digunakan adalah berbeza, jadi anda mesti memberi perhatian apabila menggantikan fius. Semua model fius yang dipilih ditandakan di bahagian dalam pintu setiap ruang tekanan tinggi pengubah kumpulan, dan jenis fius yang sama mesti dipilih ketika menggantikan fius, dan model fius yang dipilih untuk pengubah kotak kapasiti yang berbeza adalah seperti berikut::
kapasiti | Spesifikasi fius sisipan |
100 | 4038108C06 |
125 | 4038108C07 |
160 | 4038108C07 |
200 | 4038108C09 |
250 | 4038108C09 |
315 | 4038108C09 |
400 | 4038108C12 |
500 | 4038108C12 |
630 | 4038108C12 |
800 | 4038108C14 |
1000 | 4000353C16 |
1250 | 4000353C16 |
1600 | 4000353C17 |
D. Perkhidmatan yang disediakan aksesori kabel
A: Aksesori kabel: palam siku, lengan pas tunggal (atau lengan pas dua), penyambung pas tunggal (atau penyambung pas dua), topi perlindungan penebat, lihat L Lampiran 3-5 masing-masing.
E E. Perkhidmatan Penangkap lonjakan
Sekiranya anda perlu memasang penangkap kilat pada kumpulan, anda boleh memilih penangkap zink oksida jenis siku yang terlindung sepenuhnya. Semasa pemasangan, kumpulan kereta mengambil sarung dua pas, satu hujung sarung dua pas disambungkan ke palam jenis siku, dan hujung yang lain disambungkan ke penangkal kilat. K Kaedah pemasangan penangkap lonjakan:
☆ Sambungkan wayar asas ke tanah sistem.
☆ G Gunakan dawai tembaga untuk menyambungkan hujung grounding arrester dengan grounding sistem.
☆ G Gunakan permukaan kenalan penghalang pelincir yang disediakan oleh kilang ini.
☆ G Guna tuil operasi terlindung untuk cangkuk lubang operasi penangkap, dan masukkan penangkap ke dalam sendi sarung dengan paksa, dan pastikan untuk memasukkan penangkap di tempat. Nota: Penghalang mesti dikeluarkan dan dipasang semula selepas ujian.
F. F. Penunjuk kesalahan dan paparan voltan
L Lihat L Lampiran 6
10. Penyelenggaraan
A: A. Perkhidmatan yang disediakan Penyelenggaraan luaran
Sentiasa memeriksa semua permukaan luar komposisi, dan membaikinya dengan segera jika salutan mempunyai lebam, calar dan haus yang tidak sengaja.
B. B.. B. B.. Penyelenggaraan dalaman
Sentiasa semak sama ada semua aksesori dan instrumen dalam bilik tekanan tinggi dan rendah kumpulan berfungsi dengan normal, dan semak sama ada terdapat kebocoran di setiap bahagian pengedap.
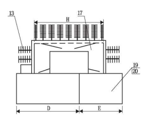
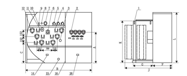
L Lampiran 1 Saiz pengubah gabungan dan pemasangan
| 1 Hook 11 Pengukur suhu minyak 2 sarung voltan rendah 12 Soket sarung voltan tinggi 3 penukar paip 13 heatsink 4 dinding-mounted 14 grounding bilik tekanan tinggi 5 Fius plug-in 15 injap saliran minyak 6 Suis beban 16 Pelindung 7 Pengukur Tekanan 17 Tangki bahan api 8 Tekanan pelepasan injap 18 Membangunkan bilik tekanan rendah 9 Pelabuhan suntikan minyak 19 B. B.ilik tekanan tinggi 10 Pengukur paras minyak 20 papan nama |
G Gambar 1-1 Rajah dimensi jenis mesh cincin standard dan terminal crucian carp menggabungkan akhbar
K Kapasiti K Komposisi (kVA: A). | A: A | B. B. | C | D | E E | F | G G | H | J J | K K | L L |
100 | 1030 | 1971 | 680 | 1091 | 880 | 536 | 560 | 1350 | 1176 | 1346 | 1580 |
125 | 1030 | 1971 | 680 | 1091 | 880 | 536 | 560 | 1350 | 1176 | 1346 | 1580 |
160 | 1030 | 1971 | 680 | 1091 | 880 | 536 | 560 | 1350 | 1176 | 1346 | 1580 |
200 | 1030 | 1971 | 680 | 1091 | 880 | 536 | 560 | 1350 | 1176 | 1346 | 1580 |
250 | 1030 | 1971 | 680 | 1091 | 880 | 536 | 560 | 1350 | 1335 | 1346 | 1580 |
315 | 1030 | 1971 | 680 | 1091 | 880 | 536 | 560 | 1350 | 1335 | 1346 | 1580 |
400 | 1030 | 1971 | 680 | 1091 | 880 | 536 | 560 | 1350 | 1335 | 1346 | 1580 |
500 | 1030 | 1971 | 680 | 1091 | 880 | 536 | 560 | 1350 | 1335 | 1346 | 1580 |
630 | 1290 | 2000 | 796 | 963 | 1037 | 660 | 660 | 1440 | 1540 | 1486 | 1710 |
800 | 1290 | 2000 | 796 | 963 | 1037 | 660 | 660 | 1440 | 1675 | 1486 | 1710 |
1000 | 1290 | 2000 | 796 | 963 | 1037 | 660 | 660 | 1440 | 1765 | 1486 | 1710 |
1250 | 1200 | 2205 | 836 | 1158 | 1047 | 660 | 760 | 1440 | 1865 | 1486 | 1710 |
1600 | 1200 | 2205 | 836 | 1213 | 992 | 660 | 800 | 1700 | 1920 | 1526 | 1710 |
Nota:: (1). Dimensi di atas adalah untuk rujukan sahaja;
(2). J Jenis terminal dan jenis rangkaian cincin mempunyai dimensi keseluruhan yang sama.
|
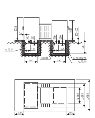
|
G Gambar 1-3 Rajah skematik pemasangan pengubah gabungan standard | G Gambar 1-4 Rajah skematik pemasangan transformer gabungan sub-ibu |

1 Pembasmian bilik tekanan rendah 2 sarung tekanan rendah 3 cangkuk 4 B. B.ilik hiperbarik 5 Tangki bahan api 6 Sinki haba 7 pemasangan dinding 8 Pelabuhan suntikan minyak 9 Injap pelepasan tekanan 10 Pengukur paras minyak | 11 tolok tekanan 12 Suis beban 13 Fius plug-in 14 penukar paip 15 G Grounding di dalam bilik hipervoltan 16 Soket sarung voltan tinggi 17 K Kacang ganti 18 Pembinaan bilik tekanan rendah 19 Papan nama |
K Kapasiti pengubah (K KVA: A). | A: A | B. B. | F | G G | K K |
100 | 2000 | 1400 | 660 | 1400 | 730 |
125 | 2000 | 1400 | 660 | 1400 | 730 |
160 | 2000 | 1400 | 660 | 1400 | 730 |
200 | 2000 | 1400 | 660 | 1400 | 730 |
250 | 2000 | 1400 | 660 | 1400 | 730 |
315 | 2000 | 1400 | 660 | 1400 | 730 |
400 | 2000 | 1400 | 660 | 1400 | 730 |
500 | 2000 | 1400 | 660 | 1400 | 730 |
630 | 2205 | 1400 | 800 | 1465 | 755 |
800 | 2205 | 1400 | 800 | 1465 | 755 |
1000 | 2205 | 1400 | 800 | 1465 | 755 |
1250 | 2205 | 1400 | 800 | 1465 | 755 |
Nota:: (1). Dimensi di atas adalah untuk rujukan sahaja;
(2). J Jenis terminal dan jenis rangkaian cincin mempunyai dimensi keseluruhan yang sama.
L Lampiran 2 Fius plug-in
Tarik keluar tiub fius
1. Tarik keluar injap pelepasan tekanan, dan selepas tekanan dalam tangki bahan api dilepaskan sepenuhnya, cangkuk lubang operasi paip fius dengan tuas operasi terlindung.
2. Tekan pemegang operasi supaya cangkuk bergerak pemegang operasi mengunci lubang operasi tiub fius, dan putar cangkuk kunci tiub fius sebanyak 90 ° untuk melepaskan keadaan pengunci antara tiub fius dan kerusi fius.
3. Tarik tiub fius ke atas kira-kira 100mm, tinggal selama beberapa saat, dan perlahan-lahan tarik keluar tiub fius selepas minyak pada aliran tiub fius.
4. Pegang pemegang dan lap keluar noda minyak daripada tiub fius.
Nota: Sekiranya minyak didapati mengalir keluar daripada pemasangan fius, injap pelepasan tekanan perlu ditarik keluar sekali lagi untuk mengimbangi tekanan di dalam dan di luar tangki.
G Gantikan fius
1. Melepaskan kacang paip yang disatukan dengan kunci dan lepaskan kacang yang lain dengan kunci lain. (G Gambar 2 - 1)
2. Melepaskan bolt akhir dan keluarkan fius. (G Gambar 2-2)
(Nota:: J Jika fius tidak disatukan, elektrod berbentuk corong yang rata mesti diluruskan sebelum fius boleh dikeluarkan)
3. Periksa bahagian dalam paip fius untuk memastikan kebersihan.
4. Masukkan fius baru dari satu hujung, dan elektrod yang dibakar fius telah dipasang di hujung pemegang. (G Gambar 2-3)
5. Pasang paip fius dan mengikatnya dengan kunci, tork ialah kira-kira 5.7 - 8N.m.
6. Meratakan elektrod berbentuk corong, memasang bolt dalaman, gunakan satu kunci untuk menangkap lebur, gunakan kunci lain untuk mengetatkan bolt akhir, tork kira-kira 5.7 - 8N.m, dan kemudian membuka skru bolt akhir, periksa sama ada elektrod berbentuk corong diratakan untuk memastikan hubungan yang baik.
Pasang fius plug-in
1. Hook lubang operasi paip fius dengan tuas operasi terlindung.
2. Masukkan tiub fius ke dalam kerusi fius, putar cangkuk kunci tiub fius sebanyak 90 °, dan mengetatkan kunci untuk cangkuk fius untuk memastikan meterai antara kerusi tiub fius.
G Gambar 2-1 | G Gambar 2-2 | G Gambar-gambar 2-3 |
L Lampiran 3 L Lengan saluran tunggal dan lengan dual-saluran
Pembersihan paip saluran berganda, pelinciran dan pemasangan 1. B. B.ersihkan permukaan kenalan sarung dua pas dan kerusi sarung dengan merujuk kepada keperluan sarung satu pas, gunakan gris, dan skru sarung dua pas dalam arah arah jam sehingga ratchet tidak aktif dan membuat bunyi selepas mengetatkan. 2. G Gunakan plat penetapan untuk meletakkan paip berganda. 3. Penggunaan 0. 8mm atau dawai tembaga yang setara untuk menyambung lubang tanah paip berganda dengan tanah sistem. 4. Pasang bahagian-bahagian yang sepadan (seperti palam siku, penangkal kilat atau topi perlindungan penebat, dan lain-lain). |
|
Pembersihan paip saluran tunggal, pelinciran dan pemasangan 1. B. B.ersihkan permukaan kenalan sarung dan kerusi tiub, gunakan gris, skru ke sarung pas tunggal mengikut arah jam, dan mengetatkannya dengan alat khas (tujuh setengah giliran). Nota: J Jika alat dipasang dengan tork, tork ialah 13.5N. m. 2. G Ground lubang grounding sarung tunggal pas dengan dawai fleksibel. |
|
L Lampiran 4 Palam siku
|
|
G Gambar 4-1 | G Gambar 4-2 |
A: Arahan untuk memasang palam siku
1 .Rawatan fasa berpecah kabel tiga teras
☆ Potong daripada dalaman dan luar selubung di kabel yang akhir > 800mm.
☆ Meletakkan sarung tangan cawangan pada fasa pemisahan, sarung mengecut haba (lapisan perisai tanah) pada setiap wayar fasa tunggal, lihat Rajah 4-2 Untuk setiap saiz rawatan.
2 .pemasangan palam siku
☆ B. B.ersihkan permukaan konduktor dengan berus kabel, letakkan sendi yang ditekan sejuk pada konduktor kabel, skru konduktor penyambung ke dalam lubang skru sendi yang ditekan sejuk, dan masukkan tunggal (duaan) melalui sarung pada masa akan datang.
☆ Pilih alat crimping yang sesuai, crimping harus bermula dari sambungan tembaga dan aluminium sendi crimping sejuk, dan putar 90° untuk setiap penekanan, K Keluarkan pelincir berlebihan dengan kain lembut.
☆ K Keluarkan konduktor yang menyambung dan skru ke bawah.
☆ B. B.ersihkan dan melincirkan permukaan kabel dan bahagian dalam palam siku, perlahan-lahan menolak kabel ke dalam palam siku, dan membimbing sambungan dengan penyambung yang terlindung. L Lubang skru pada sendi yang ditekan sejuk kelihatan di hujung palam siku.
☆ Skru konduktor penyambung ke dalam lubang skru sendi yang ditekan sejuk dan mengetatkannya dengan kunci pemasangan sehingga ia torsional 180. J Jika (jika.)
Dengan perancangan lain, perancangan itu ialah 12.4N.m) o
☆ G Gunakan pita pelekat diri penebat untuk membungkus palam siku dan lengan mengecut haba kabel.
☆ G Gunakan dawai tanah untuk menyambungkan lubang tanah palam siku dengan titik tanah sistem.
Memuatkan input
☆ J Jarak operasi yang mencukupi perlu dipastikan.
☆ G Gunakan rod operasi terlindung untuk cangkuk lubang operasi palam siku.
☆ J Jajarkan konduktor penyambung palam siku dengan konduktor lengan dan dorong ke hadapan sehingga anda merasakan bahawa ia disambungkan, iaitu, pastikan untuk mendorongnya di tempat.
☆ Operasi mestilah cepat, tepat, tegas dan berkuasa.
L Load cut-off
☆ Hook lubang operasi palam siku dengan tuil operasi terlindung.
☆ Menghidupkan tuil operasi yang terlindung kiri dan kanan untuk mengurangkan geseran antara permukaan sarung dan palam siku.
☆ Tarik palam siku dengan cepat, tepat, tegas dan kuat, berhati-hati untuk tidak menyentuh konduktor dengan dawai tanah berdekatan.
☆ G Gantung palam siku pada tunggal (double) melalui penyambung dengan tuil operasi terlindung.
☆ G Gunakan tuil operasi penebat untuk menutupi topi perlindungan penebat yang disambungkan ke dawai tanah pada bahagian konduktif.
Notis: Operasi palam siku perlu dijalankan oleh kakitangan yang biasa dengan prosedur keselamatan dan operasi sistem kuasa.
G Gunakan palam siku untuk memisahkan beban hanya dalam keadaan kecemasan (atau khas), dan disyorkan menggunakan suis yang sesuai.
Palam siku tidak boleh digunakan untuk menutup kesalahan litar pintas.
L Lampiran 5 K Kelengkapan pas tunggal (double) dan topi perlindungan penebat
☆ Penyambung pas tunggal (double) digunakan untuk palam ke palam siku langsung, mengasingkan kabel langsung, membahagikannya, atau menggunakannya untuk palam dan menarik tiada
Palam siku elektrik memainkan peranan dalam habuk, air dan kelembapan.
☆ Penyambung dua hala boleh disambungkan ke palam jenis siku di satu hujung dan penghalang lonjakan jenis siku di hujung yang lain.
☆ Cap pelindung penebat menyediakan penebat dan sampul perlindungan untuk lengan dan sendi.
Pemasangan pas tunggal (double)
1. K Keluarkan topi pelindung pengangkutan, bersih dan pelincir {merujuk kepada keperluan tunggal (ganda) melalui lengan}.
2. G Gunakan dawai tembaga untuk menyambung tunggal (double) melalui lubang asas bersama dengan tanah sistem.
3. G Gantung tunggal (double) melalui sendi di dinding menggantung dan mengetatkan bolt penetapan.
4. Meterai sendi yang sepadan dengan topi penebat.
Nota: Semua komponen yang berkaitan mesti berada dalam keadaan tiada kuasa sebelum penyambung pas tunggal (ganda) boleh dipasang dan dikeluarkan.
pemasangan topi perlindungan penebat
1. B. B.ersihkan dan melincirkan permukaan luar sendi (atau selongsong) yang berkaitan dengan permukaan dalaman topi perlindungan penebat.
2. Sambungkan dawai grounding topi perlindungan penebat dengan tanah sistem.
3. Hook jack cap pelindung dengan tuil operasi terlindung dan menolak cap terlindung ke dalam sendi yang berkaitan (atau lengan) sehingga ia disambungkan ke tempat.
K Keluarkan topi perlindungan penebat
1. K Kaitkan topi pelindung dengan tuas operasi terlindung.
2. Putarkan cap pelindung kiri dan kanan untuk mengurangkan geseran permukaan kenalan, dan tariknya kembali keras untuk mengeluarkan cap pelindung.
L Lampiran 6. Penunjuk kesalahan dan penunjuk hidup
Penunjuk kesalahan dipasang pada titik ujian palam siku, apabila garis mengalir melalui, penunjuk penunjuk kesalahan mempunyai putih dan secara automatik berbalik kepada merah, menunjukkan bahawa garis berada dalam keadaan "salah" pada masa ini, apabila litar kembali ke normal, sistem secara automatik akan menetapkan semula tetingkap penunjuk dan bertukar menjadi putih. Penunjuk kesalahan mempunyai dua ambang boleh dipilih, tinggi dan rendah, dengan ambang rendah kira-kira 400A: A (RMS) dan ambang tinggi kira-kira 800A: A (RMS). Pada masa penghantaran, tetingkap paparan penunjuk kesilapan ditetapkan dalam petunjuk kesalahan (iaitu, dipaparkan dalam warna merah), dan selepas pemasangan, apabila voltan talian mencapai 5K KV, selepas beberapa minit, penunjuk kesalahan berada dalam keadaan kerja biasa, dan tetingkap paparan secara automatik ditetapkan semula ke keadaan biasa (iaitu, Disediakan dalam warna putih).
Nota: Hanya apabila voltan talian ke tanah mencapai lebih daripada 5K KV, penunjuk kesalahan boleh melakukan paparan kesalahan dan menetapkan semula untuk penyimpanan tenaga.
Penunjuk langsung dipasang pada titik ujian palam siku, dan lampu penunjuk berkedip berterusan menunjukkan bahawa garis itu hidup untuk memberi amaran kepada pencari garis.
Penunjuk K Kesalahan dan Penunjuk L Langsung adalah produk yang dimeteraikan sepenuhnya untuk digunakan dalam pelbagai iklim, dan status petunjuk mereka Tidak akan berubah kerana getaran atau kejutan mekanikal.
L Langkah pemasangan:
1. Pemasangan penunjuk dibahagikan kepada dua keadaan: kepala kabel hidup dan tidak hidup, dalam keadaan biasa, kepala kabel harus dihidupkan dan dibumi sebelum pemasangan.
2. K Keluarkan topi pelindung titik ujian palam siku dengan tuil operasi terlindung (titik ujian harus bebas daripada noda dan karat).
3. Penunjuk pelinciran yang memasang permukaan dalaman but.
4. Hook lubang operasi penunjuk dengan tuil operasi terlindung, letakkan penunjuk pada titik ujian palam siku, dan putarkannya ke kedudukan yang sesuai. A: Amaran: K Kotor, lembap atau kerosakan lain pada titik ujian atau penunjuk boleh menyebabkan penunjuk langsung secara salah menunjukkan bahawa talian itu tidak berkuasa. di tempat
Sebelum mengendalikan peralatan yang berkaitan, pastikan anda menggunakan kaedah ujian lain yang diluluskan oleh piawaian kebangsaan untuk mengesahkan sama ada talian mempunyai elektrik.
