Kami akan membentangkan prestasi, kaedah operasi yang selamat, dan parameter teknikal switchgear voltan sederhana XGN2-12
Skop permohonan
Jenis kotak port XGN-12 logam tetap tertutup switchgear (dirujuk sebagai kabinet rangkaian cincin) sesuai untuk A: AC 50Hz, rangkaian 10KV sebagai beban rehat dan litar pintas dan penutupan arus litar pintas, kabinet rangkaian cincin ini dilengkapi dengan mekanisme musim bunga manual dan elektrik untuk mengendalikan suis beban, dan suis tanah dan suis pengasingan dilengkapi dengan mekanisme operasi manual. Kabinet rangkaian cincin ini mempunyai prestasi lengkap yang kuat, saiz kecil, tiada bahaya kebakaran dan letupan, dan mempunyai fungsi "pencegahan lima" yang boleh dipercayai.
Gunakan keadaan alam sekitar
Had atas suhu ambien ialah 40 ° C, dan had bawah ialah -25 ° C;
ketinggian tidak melebihi 1000m;
purata harian kelembapan relatif udara tidak lebih daripada 95%, dan purata bulanan tidak lebih daripada 90%; Purata harian wap air tidak lebih daripada 2.2x10-3Mpa, dan purata bulanan tidak lebih daripada 1.8 × 10-3Mpa;
Udara sekitarnya tidak terhakis atau jelas tercemar oleh gas mudah terbakar dan wap air;
Tiada getaran ganas yang biasa.
Model dan makna
XGN□-□-□-□/□-□
-
-
Kaedah operasi (J operasi musim bunga D operasi elektromagnetik.)
- Nombor satu rancangan
Voltan yang diberi nilai
Nombor siri reka bentuk
- - - Indoors
- - - Tetap
Jenis kotak
Gunakan keadaan alam sekitar
◆ Had atas suhu ambien 40 °C had bawah -25 °C (dalam ruangan):
◆ Peruntukan 1000m;
(When ketinggian air melebihi 1000m, ia hendaklah dilaksanakan mengikut peruntukan yang berkaitan DUT593-1996 "Garis panduan teknikal untuk Pesanan Bersama Switchgear Voltan Tinggi");
◆ Purata kelembapan relatif harian tidak lebih daripada 95%, dan purata bulanan tidak lebih daripada 90%:
intensiti gegaran tanah tidak melebihi 8 darjah;
◆ Tiada kebakaran, bahaya letupan, pencemaran yang serius, kakisan kimia dan tempat gangguan ganas.
Parameter teknikal utama suis gear
nombor siri | Projek | Unit | data |
1 | Voltan yang dinilai | kV | 3、6、10 |
2 | Voltan operasi maksimum | kV | 3.5、8.9、11.5 |
3 | Nilai semasa | A: A | Mei-00 |
4 | Rated breaking arus | kA: A | 16.20、31.5、40 |
5 | Penglibatan Litar Pendek (Rated Short Circuit Off Current) | kA: A | 40、50、80.100 |
6 | Kadar penstabilan termal litar pintas semasa | kA: A | 16.20、31.5、40 |
7 | Nilai untuk arus stabil terma | kA: A | 40、50、80、100 |
8 | Tempoh penyelesaian terma yang dinilai | s | 4 |
9 | Tahap perlindungan | IP IP | IP IP2X |
10 | Sistem Busbar | - | Bar bas tunggal, bersebelahan dengan bar bas tunggal |
11 | Bagaimana ia berfungsi | - | Jenis elektromagnet, jenis storan tenaga musim bunga |
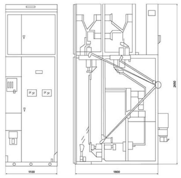
12 | Dimensi (lebar, × kedalaman, × ketinggian). | mm mm | 1100 × 1200 × 2650 (di bawah 1000A: A). |
13 | berat badan | kg | 1000 |
Struktur dan peranti anti-kesilapan
Struktur
Kabinet adalah struktur perisai yang tertutup logam, rangka kabinet dikimpal oleh keluli sudut, dan kabinet dibahagikan kepada bilik pemutus litar, bilik busbar, bilik kabel, dan bilik relay, dan operasi komponen utama di dalam kabinet boleh diperhatikan melalui tetingkap pemerhatian dan pencahayaan di fasad. Untuk meningkatkan prestasi teknikal switchgear, komponen utama (seperti pemutus litar, suis pemutus putar, dan lain-lain) telah direkabentuk semula.
Mengikut susun atur kabinet, bilik relay dipasang dengan relay, pintu boleh dilengkapi dengan relay isyarat, instrumen penunjuk, lampu isyarat, pemasangan suis pemindahan dan ruang operasi, bahagian belakang adalah bilik basbar, bahagian bawah adalah bilik kabel, pengguna boleh dengan mudah wayar. Bahagian depan ialah bilik pemutus litar, yang memudahkan penyelenggaraan suis. Mekanisme dalaman kabinet ditunjukkan dalam Rajah 1, Rajah 2 dan manual produk.
Peranti pencegahan kesilapan
Fungsi "lima pencegahan" adalah: untuk mengelakkan pemutus litar yang salah dan pemutus litar yang salah; Mencegah kesilapan pengenalan dan penutupan suis pemutus dengan beban; menghalang penutupan langsung dan suis tanah; menghalang bekalan kuasa daripada dihidupkan apabila tanah dibuka dan ditutup; Menghalang kemasukan ke dalam selang hidup.
Switchgear ini mengamalkan kaedah penguncian mekanikal wajib, dan peranti anti-ralat terdiri daripada komponen utama seperti sokongan, cakera, panel, plat pengunci, pemegang, dan rod penyambungan, yang mempunyai ciri-ciri prestasi yang boleh dipercayai, fungsi lengkap, struktur mudah dan operasi mudah, untuk mencapai "lima pencegahan" dengan mudah dan berkesan.:
(1)Suis kawalan (suis KW) dengan plat merah dan hijau digunakan dalam skim pemutus litar untuk mengelakkan pemutus litar yang salah dan salah;
(2)Hanya selepas pemutus litar benar-benar terputus, pemegang kecil boleh ditarik keluar dari kedudukan "bekerja" dan didail ke kanan ke kedudukan "penguncian pemutusan"; Suis pengasingan berpecah dan tutup; Menghalang pembahagian beban dan penutupan suis pengasingan. Kebolehpercayaan penguncian dan anti-penguncian mempunyai fungsi pencegahan ralat berganda, iaitu, apabila pemegang kecil berada dalam kedudukan "putuskan sambungan dan mengunci", ia hanya boleh menutup dan membahagikan suis pengasingan atas dan bawah, dan tidak boleh menutup pemutus litar, mengelakkan pemutus litar yang salah;
(3)A: Apabila pemutus litar dan suis pengasingan atas dan bawah berada dalam keadaan tertutup dan pemegang kecil berada dalam kedudukan "bekerja", pintu kabinet depan dan belakang tidak boleh dibuka untuk mengelakkan secara tidak sengaja memasuki selang hidup;
(4)A: Apabila suis pengasingan atas dan bawah dibuka, suis tanah tidak boleh ditutup, dan pemegang kecil tidak boleh didail dari kedudukan "pecah-kunci" ke kedudukan "selenggaraan", yang boleh menghalang hidup daripada menggantung dawai tanah;
(5)Jika suis tanah tidak dibuka, suis pengasingan atas dan bawah tidak boleh ditutup, yang boleh menghalang suis pemutus dengan wayar tanah daripada ditutup.
XGN■ - 12 / 07D garis besar (Rajah 1)

1. Bilik Busbar 2. Bilik Kabel 3. 4. Bas pembumian. Mekanisme Elektromagnetik (Spring) 5. Bilik peranti litar baharu
6. Operasi manual dan Mekanisme jualan bersama 7. Bilik Operasi. Saluran pembebasan tekanan 9. Bilik Instrumen 10. Terminal Bas Kecil
Garis besar XGN-12 (outlet kabel bypass) (Rajah 2)

Lukisan pemasangan dimensi


