Kami akan membentangkan prestasi, kaedah operasi yang selamat, dan parameter teknikal switchgear voltan sederhana HXGN-12
1. Skop penggunaan

HXGN□-12 (F.R) jenis kotak tetap A: AC logam yang disertakan switchgear (dirujuk sebagai "kabinet rangkaian cincin") adalah jenis baru switchgear yang direka untuk pengubahsuaian dan pembinaan grid kuasa bandar. Ia juga digunakan sebagai arus beban pecah, arus litar pintas dan penutup semasa dalam sistem bekalan kuasa, dan sesuai untuk sistem pengedaran kuasa A: AC 3-10KV, 50Hz. Ia digunakan secara meluas dalam pembinaan grid kuasa bandar dan projek pengubahsuaian, perusahaan perindustrian dan perlombongan, bangunan bertingkat tinggi dan kemudahan awam, dan sebagainya, sebagai Unit bekalan kuasa rangkaian cincin dan peralatan terminal, memainkan peranan pengagihan kuasa, kawalan dan perlindungan peralatan elektrik, dan juga boleh dipasang di pencawang pra-dipasang. Kabinet rangkaian cincin ini dilengkapi dengan suis beban vakum dan mekanisme operasi musim bunga, yang boleh dikendalikan secara manual atau elektrik. Suis asas dan suis pengasingan dilengkapi dengan mekanisme operasi manual, dan set lengkap kabinet rangkaian cincin ini kuat dan kecil. Tidak ada risiko pembakaran dan letupan, dan ia mempunyai fungsi "pencegahan lima" yang boleh dipercayai. Kabinet rangkaian cincin ini mematuhi peruntukan yang berkaitan dengan GB3960 "3 ~ 35KV A: AC Metal Switchgear" dan IEC60420 "suis beban A: AC voltan tinggi-menggabungkan gabungan peralatan elektrik" standard.
2. Model dan maknanya
HXGN□-12 (F.R.)
H: Rangkaian cincin
X: Jenis kotak
G: Stesen
N: Dalaman
□: Reka bentuk nombor siri
12: Voltan yang dinilai
(F.R): Gabungan suis-fius beban
3. Syarat penggunaan biasa
1. Suhu udara sekitar: -15. 0 40 °C;
2. Ketinggian: 1000m dan di bawah;
3. Keadaan kelembapan: purata harian tidak melebihi 95%, tekanan wap air purata harian tidak melebihi 2.2kPa, purata bulanan tidak melebihi 90%, dan tekanan wap air purata bulanan tidak lebih daripada L 8kPa;
4. Keamatan gempa bumi: tidak lebih daripada 8 darjah;
5. Tidak terdapat bahan pencemar yang jelas seperti gas menghakis atau mudah terbakar.
Nota: Sekiranya syarat penggunaan biasa di atas melebihi, pengguna boleh berunding dengan Syarikat.
4. Parameter teknikal utama
nombor siri | nama | Unit | data | |
1 | Voltan yang dinilai | KV | 12 | |
2 | Nilai semasa | Load switchgear | A: A | 630 |
Switchgear Gabungan | 125 | |||
3 | Rated litar pintas semasa memecahkan | KA: A | 31.5 | |
4 | Nilai beban aktif memecahkan semasa | A: A | 630 | |
5 | Rated untuk jangka pendek tahan semasa | KA: A | 20 | |
6 | Puncak yang dinilai menahan semasa | KA: A | 50 | |
7 | Frekuensi kuasa yang dinilai dinilai untuk menahan interfase voltan, tanah/break | KV | 42/48 | |
8 | Kejutan kilat tahan terhadap fasa voltan, tanah/break | KV | 75/85 | |
9 | Kehidupan mekanikal | Tempoh | 10000 | |
10 | Penyerahan Bernilai semasa (Peranti Gabungan) | A: A | 3150 | |
11 | Bagaimana ia berfungsi | Manual atau elektrik | ||
12 | Tahap perlindungan | IP3X | ||
5. Ciri-ciri struktur (as Gambar 2 dan Gambar 3)
1. Ciri-ciri prestasi struktur
1.1.1 kabinet rangkaian cincin mengamalkan profil 8MF, dan bingkai keseluruhan dipasang dengan lubang modulus B = 2 (tan.
L1.2 cincin rangkaian kabinet dilengkapi dengan FZN21 - 12D beban suis atau FZRN21 - 12D fius gabungan elektrik perkakas, yang mempunyai suis pengasingan, suis beban vakum dan suis hentakan, dan suis putus sambungan dan suis asas mempunyai rehat yang jelas.
1,3 suis pengasingan, suis beban vakum, suis asas, dan pintu kabinet mempunyai peranti menggali dan saling yang sempurna dan boleh dipercayai, yang berkesan dapat mencegah salah operasi dan memastikan penyelenggaraan yang selamat.
1.1.4 Ia boleh dioperasikan secara manual dan elektrik.
1. Pintu kabinet dan pintu instrumen kabinet mengukur L5 dilengkapi dengan pin pengedap.
1.1.6 menggabungkan gabungan kabinet elektrik dan mencairkan tiub dengan pin menembak. Dalam kes litar pintas, pin menembak memukul mekanisme tersandung untuk mencapai pembukaan dan pecah yang cepat, yang berkesan dapat melindungi peralatan elektrik.
Kabinet mesh 1.L 7 cincin mengamalkan operasi depan, pemasangan dinding yang boleh dipercayai.
2. "Lima pencegahan" fungsi mengunci
2. Operasi penghantaran kuasa 2.1: hanya apabila pintu kabinet ditutup dan dikunci, dan suis tanah dikendalikan ke kedudukan "terbuka", suis beban boleh dikendalikan untuk menutup kedudukan.
2.2.2 operasi gangguan kuasa: apabila suis beban berada dalam kedudukan pengasingan, suis asas boleh ditutup, dan apabila suis asas berada dalam kedudukan tertutup, partition penebat dimasukkan ke dalam tempat untuk membuka pintu kabinet.
2.1. 3 interrupter vakum adalah dipercayai interlocked dengan pisau pengasingan, dan pisau pengasingan dan pisau hentakan dihubungkan antara satu sama lain dan interlocked dengan pintu kabinet, dan partition penebat juga bersambung dengan pintu kabinet.
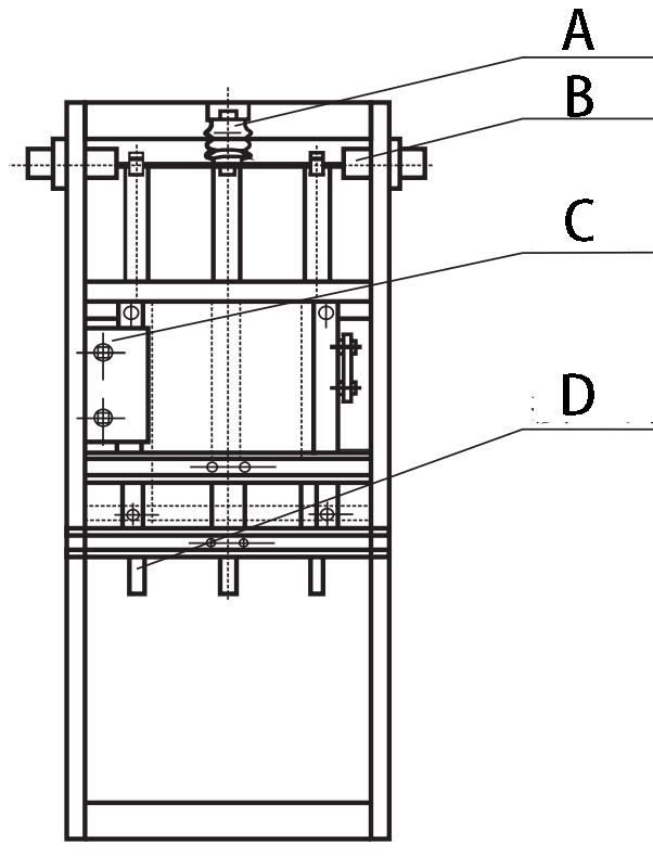
![]() | Rajah 2 A: A: Penebat B: Melalui sarung dinding C: Mekanisme operasi D: Suis Grounding |
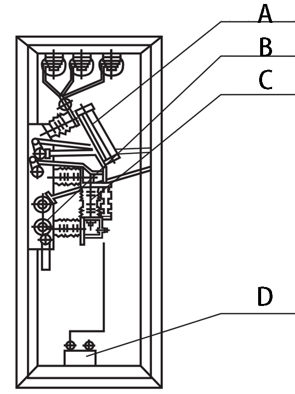
![]() | Rajah 3 A: A: Fius (pintu pisau pengasingan) B: Mekanisme kawalan peluru C: Suis beban D: Transformer semasa |
6. Prinsip pembekalan kuasa rangkaian cincin
Bekalan kuasa rangkaian cincin <terdiri daripada tiga Unit asas (lihat angka) kabinet talian masuk dan keluar digunakan sebagai Unit rangkaian cincin, yang boleh diasingkan dalam masa apabila berlaku kesalahan, dan Unit lain memastikan bekalan kuasa berterusan cawangan pengubah pengguna. Kabinet rangkaian gelung pengguna memainkan peranan dalam melindungi dan mengasingkan pengubah, yang mudah untuk penyelenggaraan dan baik pulih. Kabinet rangkaian cincin boleh sewenang-wenangnya dilanjutkan, dan boleh terdiri daripada pelbagai skim gabungan dari Unit asas mengikut keperluan pengguna.
![]() | ||
| Kabinet saluran masuk dan keluar kabel Kabinet cawangan pengubah pengguna Kabinet saluran masuk dan keluar kabel |
7. Rajah skim litar utama
Nombor skim | 01 | 02 | 03 | 04 | 05 | 06 |
Rajah skim litar utama | ![]() | |||||
kegunaan | Kabel dalam dan luar talian | Kabel dalam dan luar talian | Kabel dalam dan luar talian | Kabel dalam dan luar talian | Kabel dalam dan luar talian | Kabel dalam dan luar talian |
Pengasingan/beban / gabungan peralatan | GN□-12D | GN□-12D | GN□-12D | FZN21 - 12D | FZN21 - 12D | FZN21 - 12D |
Fius | RN3 | RN3 | ||||
Transformer semasa | LZZBJ9 | LZZBJ9 | ||||
penangkap | HY5W | |||||
Nombor skim | 07 | 08 | 09 | 10 | 11 | 12 |
Rajah skim litar utama | ![]() | |||||
kegunaan | Kabel dalam dan luar talian | Kabel dalam dan luar talian | Kabel dalam dan luar talian | Kabel dalam dan luar talian | Kabel dalam dan luar talian | Kabel dalam dan luar talian |
Pengasingan/beban / gabungan peralatan | FZN21 - 12D | FZN21 - 12D | FZN21 - 12D | FZN21 - 12D | FZN21 - 12D | GN□-12D |
Fius | RN2 | RN2 | RN2 | |||
Transformer semasa | LZZBJ9 | LZZBJ9 | LZZBJ9 | LZZBJ9 | ||
Transformer Voltan | JDZ | JDZ | JDZ | |||
penangkap | HY5W | HY5W | HY5W | |||
Nombor skim | 13 | 14 | 15 | 16 | 17 | 18 |
Rajah skim litar utama | ![]() | |||||
kegunaan | kabel pengukuran talian masuk dan keluar | Kabel dalam dan luar talian | Kabel dalam dan luar talian | Kabel dalam dan luar talian | kabel pengukuran talian masuk dan keluar | Outlet kabel masuk overhead |
Pengasingan/beban / gabungan peralatan | FZRN21 - 12 | FZRN21 - 12D | FZRN21 - 12D | FZRN21 - 12D | GN□-12D | |
Fius | RN2 | S□LA: AJ | S□LA: AJ | S□LA: AJ | RN2 | RN3 |
Transformer semasa | LZZBJ9 | LZZBJ9 | LZZBJ9 | LZZBJ9 | ||
Transformer Voltan | JDZ | JDZ | ||||
Nombor skim | 19 | 20 | 21 | 22 | 23 | 24 |
Rajah skim litar utama | ![]() | |||||
kegunaan | Outlet kabel masuk overhead | Outlet kabel masuk overhead | Outlet kabel masuk overhead | Outlet kabel masuk overhead | Outlet kabel masuk overhead | Outlet kabel masuk overhead |
Pengasingan/beban / gabungan peralatan | FZRN21 - 12D | FZRN21 - 12D | FZRN21 - 12D | FZRN21 - 12D | FZRN21 - 12D | FZRN21 - 12D |
Fius | S□LA: AJ | S□LA: AJ | S□LA: AJ | S□LA: AJ | ||
Transformer semasa | LZZBJ9 | LZZBJ9 | LZZBJ9 | LZZBJ9 | ||
Transformer Voltan | ||||||
Nombor skim | 25 | 26 | 27 | 28 | 29 | 30 |
Rajah skim litar utama | ![]() | |||||
kegunaan | kenalan | kenalan | Pengukuran dan perhubungan | Pengukuran dan perhubungan | Hubungan talian overhead | Hubungan talian overhead |
Pengasingan/beban / gabungan peralatan | FZRN21 - 12 | FZRN21 - 12D | FZRN21 - 12D | FZRN21 - 12 | ||
Fius | S□LA: AJ | RN2 | RN2 | S□LA: AJ | ||
Transformer semasa | LZZBJ9 | LZZBJ9 | ||||
Transformer Voltan | JDZ | JDZ | ||||
8. Bentuk dan saiz pemasangan
1. Saiz keseluruhan kabinet rangkaian cincin
![]() | ![]() | A: Arahan lebar Kabinet |
| Penerangan: Ketinggian boleh dipilih | arah kedalaman kabinet |
2. Saiz pemasangan kabinet rangkaian cincin
![]() |
| Nota: keluli saluran mesti dipercayai grounded |
